このページを印刷する
- 価格
-
1,890万円
- 間取
-
2LDK
| 所在地 | 大阪府泉南市中小路2丁目 |
|---|---|
| 建物名 | 泉南市中小路2丁目 |
| 交通 |
|
| 特徴 |
| 築年月 | 2019年4月(築6年11ヶ月) | 新築/中古 | 中古 |
|---|---|---|---|
| 面積 | 104.75m²(31.68坪) | 計測方式 | |
| バルコニー | 向き | ||
| 建物階数 | 地上2階 | 所在階 | |
| 部屋番号/区画番号 | --- | 総戸数/総区画数 | --- |
| 建物構造 | 木造 | ||
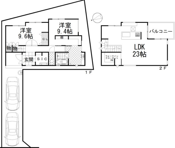
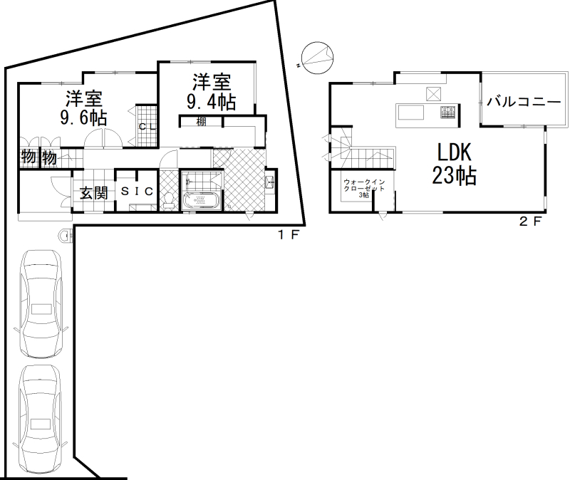
| 間取内容 | LDK23帖 2階 1室洋室9.6帖 1階 1室洋室9.4帖 1階 1室 SIC WIC |
||
| 駐車場 | 取引態様 | 売主 | |
| 引渡/入居時期 | 即時 | 現況 | 空家 |
| 地目 | 宅地 | 用途地域 | 準工業 |
| 都市計画 | 市街化区域 | 地勢 | 平坦 |
| 土地面積 | 129.83m²(39.27坪) | 土地面積計測方式 | 公簿 |
| 建ぺい率 | 60% | 容積率 | 200% |
| 土地権利 | 所有権 | 接道状況 | 一方 |
| 接道方向1 | 西 | 接道間口1 | 4m |
| 接道種別1 | 公道 | 接道幅員1 | 6m |
| 周辺環境 | |||
| 設備・条件 |
|
||
| 学区 |
小学校
中学校
|
||
| 物件カテゴリー | |||
| 自社物 | 自社物 | 状態 | 売出中 |
| 物件番号 | 4529 | ||
| 情報登録日 | 2025年12月9日 | 情報更新日 | 2025年12月9日 |
室内改装済(2025年12月)
◆クロス一部張替◆洗面化粧台交換◆ハウスクリーニング 等
2階リビングのお家です♪
1F洋室9.6帖は間取り変更可能です
物件掲載内容と現況に相違がある場合は現況を優先といたします。
物件周辺マップ
Loading...
ご注意
- 物件によっては正確な位置を示していない場合がございます。
- 現況が表示された内容と異なる場合は現況優先といたします。
- 表示されてる地図はGoogle社より提供されてるデータに基づいたものであり、表示内容についての責任は負いかねます。












